Projet Rivard

Parfois, ce qui nous manque, ce n’est pas la volonté, mais l’inspiration.
Une idée, une direction, un tunnel à travers lequel avancer. C’est là que notre devoir commence.
Travaux exécuté par Construction Desparois

Source image : Facebook / Construction Desparois / 17 mai 2025
Le design d’intérieur ne consiste pas uniquement à faire du beau.
C’est avant tout l’art de repenser l’espace, même dans les contraintes les plus serrées.

Source image : Facebook / Construction Desparois / 17 mai 2025
Le projet a pris une autre forme, mais chaque détail — qu’il s’agisse de l’emplacement des éléments sanitaires ou des finitions en bois — porte la marque de notre réflexion.
Et c’est ce qui fait notre fierté.


Les différentes perspectives de conception.
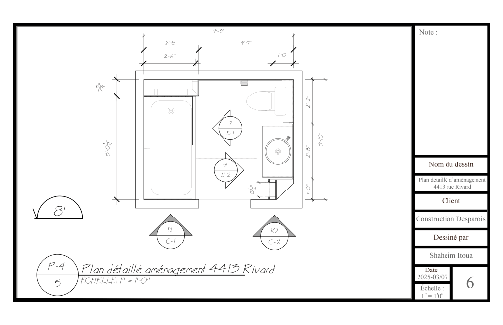
Les différents plans de conception.


